Authentisches Steinhaus an der Ostflanke des Morvan
139 000 €
Ref #: CH5575L
Die Maklerkosten werden vom Verkäufer bezahlt.
In einem sehr ruhigen Tal des Naturparks Morvan, etwas außerhalb des Dorfes Barnay, liegt dieses sympathische Bauernhaus aus Stein.
Umgeben von Natur, Wäldern und Feldern ideal für Ruhesuchende und Naturliebhaber.
Dieses solide gebaute Haus hat in den letzten 10 Jahren mehrere Verbesserungen erfahren; der Dachstuhl wurde vor 10 Jahren teilweise erneuert und ist in gutem Zustand, die Immobilie hat größtenteils doppelt verglaste Fensterrahmen, die Fosse septique ist auf dem neuesten Stand, ein neuer Carport aus Massivholz wurde für 2 Autos gebaut, eine neue hochwertige Frohling-Holzzentralheizung wurde vor 1 Jahr installiert.
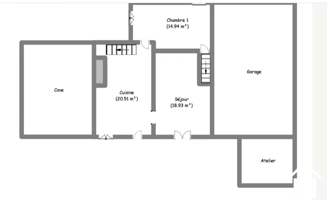
Im Erdgeschoss: Eingang/Vollwertküche, Wohnzimmer, Buanderie mit Schränken. Garage/Werkstatt und altes Türmchen, das derzeit als Lager genutzt wird. Die Immobilie ist teilweise unterkellert.
Erster Stock: 3 Schlafzimmer mit Einbauschränken, Bad mit Dusche, WC mit Dusche und ein Dachboden, der noch bewohnbar gemacht werden muss.
Kurzum, ein Haus, das bereit ist, Ihren burgundischen Traum zu verwirklichen.
Autun in 16 km, Saulieu in 25 km.
Kontaktieren Sie uns bald für eine Besichtigung, auch an Wochenenden!
Ein Dossier über die Umweltrisiken für diese Immobilie ist auf Anfrage erhältlich. Sie ist auch auf dieser Website georisques.gouv.fr zu finden, wenn Sie das Dorf suchen.
Ein Dossier über die Umweltrisiken für diese Immobilie ist auf Anfrage erhältlich. Sie ist auch auf dieser Website georisques.gouv.fr zu finden, wenn Sie das Dorf suchen.
Property# CH5575L
Qualität

Räume Anzahl
5
Schlafzimmer
3 Schlafzimmer
Wohnfläche (m²)
119
Grundstückflache (m²)
658
Wohnzimmerfläche (m²)
24
Kellerfläche (m²)
30
Badezimmer
2
Toiletten
2
Baujahr
1850
Umgebung
Umgebung
am Land
Nachbarschaft
freistehend
Andere plus punkten
ruhige Umgebung
Ausrichtung
Süd
Nächste Bahnhof
Le Creusot TGV
Bahnhof Entfernung (km.)
50
Nächste Flughafen
lyon
Flughafen Entfernung
175
Wohnung Eigenschaften
Etage
1
Mehr Eigenschaften
Grundsteuer
474 €
Parkplatz, wie viel autos
3
Aussenausstattung
(Wein) Keller, Terrasse, Scheune, umzaüten Garten, Holzlagerfläche, Werkstatt
Andere Vorteile
Broadband available
Energie
Heizung
Holzkessel/ Holzpelletskessel
Abwasseranlage
individuelles Abwasseranlage
Other features energy
Elektrizität verbunden, Wasser verbunden
Energie- und Klimaparameter
Klimaeffiziente Immobilie
A
B
C
D
Verbrauch
(Hauptenergiequelle)
emissions
201
kWh/m2/an
5*
kg CO2/m3/an
E
F
G
Geschätzter jährlicher Energieaufwand bei durchschnittlicher Nutzung:
Von 860 € bis 1 220 € Ausgaben pro Jahr
Durchschnittliche Energiepreise, indexiert pro 05-09-2033 (einschließlich Dauergebühren)
Klimatische Leistung
Wenig CO2-Emissionen
A
emissions
5*
kg CO2/m3/an
B
C
D
E
F
G

Makler(in) kontaktieren
Chris Van Halewijn
Téléphone: +33 7 87 18 65 56
E.I. Agent Commercial RSC Chalon s/ Saône 880 680 848
Morvan Lakes
Burgund information
-
Schöne Landschaften
-
Reiche Kultur
-
Ganzjährige Aktivitäten
-
Einfacher Zugang
-
Gut definierte Jahreszeiten
-
Renommierte Lebensmittel und edle Weine
